咨询热线
13777594082


恭祝杭州瞳墨艺术培训中心装修设计开工大吉
来源: 浙江国富装饰 浏览人数: 2167次 更新时间: 2023-01-31
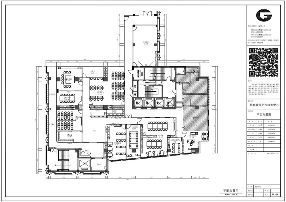
项目名称:杭州瞳墨艺术培训中心
项目地址:浙江省杭州市
施工公司:浙江国富装饰
相关资质:设计乙级资质 施工贰级资质
公司介绍:
浙江国富装饰设计工程有限公司成立于2008年,注册资金5000万,拥有国家住建部颁发:建筑装饰工程设计乙级资质、建筑装修装饰工程贰级资质、消防设施工程专业贰级资质、电子与智能化工程贰级资质、防水防腐保温工程贰级资质、建筑物纠偏和平移特种资质、建筑物结构补强特种资质、建筑装修装饰施工劳务资质、建筑安全生产许可证等专业资质证书;专业承接教育机构、培训机构等空间策划、设计、预算、施工、售后、消防、暖通、结构等系统化工装服务品牌企业。
公司秉承“真诚、守信、创新、共赢”的企业经营理念,以满足客户的需求为己任,通过十几年的稳健发展和沉淀,拥有专业资深设计团队和工程管理团队,已服务5000+经典客户,获得了业界广泛的信任和认可,形成了品质化、规?;?、规范化、专业化的服务优势。
公司自成立以来,注重企业文化建设,打造成为有高度、有深度、有广度的文化企业,树立良好企业形象,凭借多方面优势,荣获“全国信用AAA企业”、“浙江省信用优秀企业”和“质量AAA级信用单位”等荣誉称号,获得装饰领域多项发明和实用新型专利证书,成为浙江省消费者放心的知名品牌企业。
开工仪式



工地现场






设计平面图

31
2023-01
联系信息
手 机:13777594082(微信同号)微信公众号二维码

长按二维码识别关注
装修咨询微信二维码

长按二维码识别添加